Büro
Projekte
Team
Literatur | Presse
Kontakt
de
en
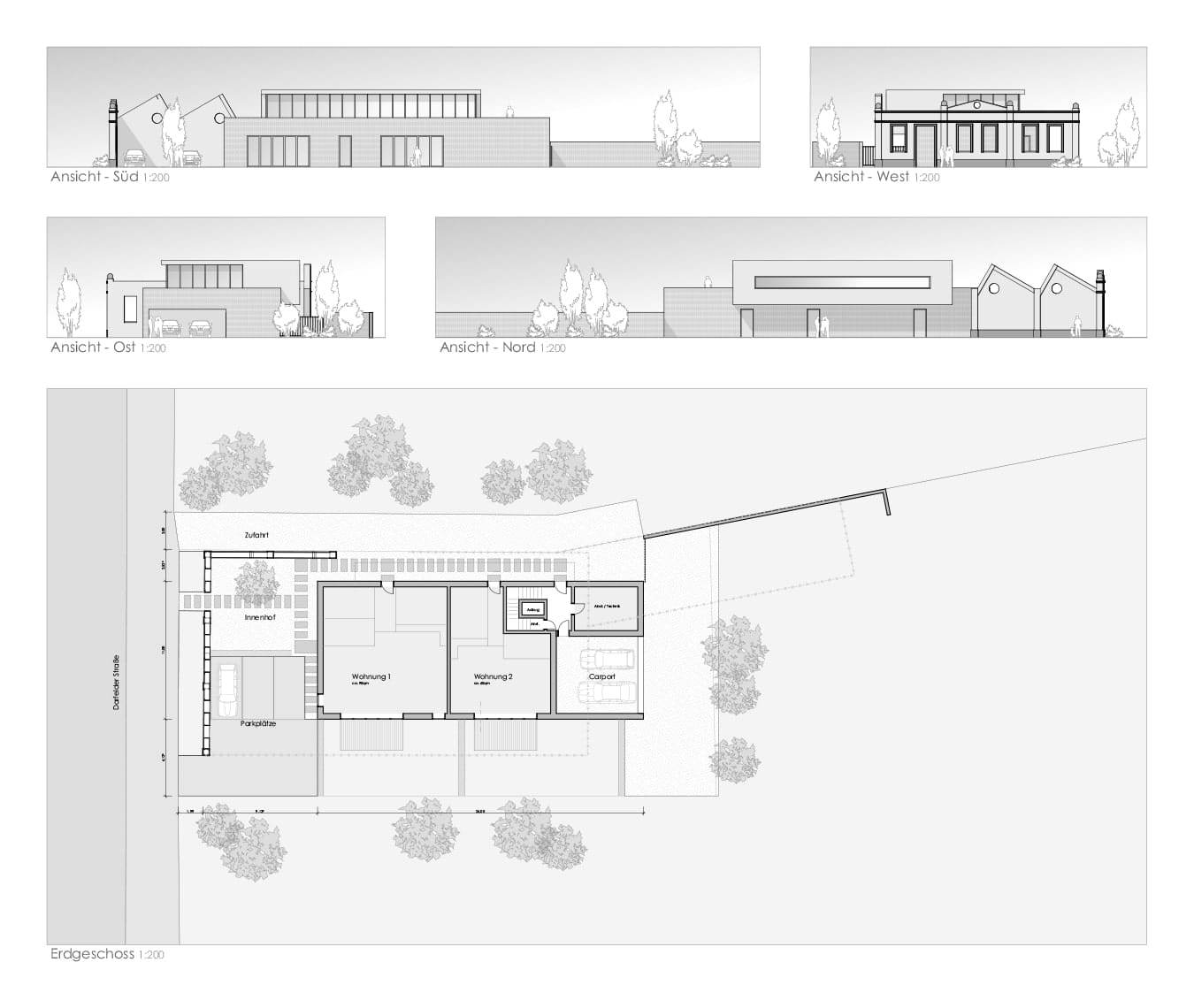
Alte Strumpffabrik
Neue Baukunst hinter geschichtsträchtiger Fassade